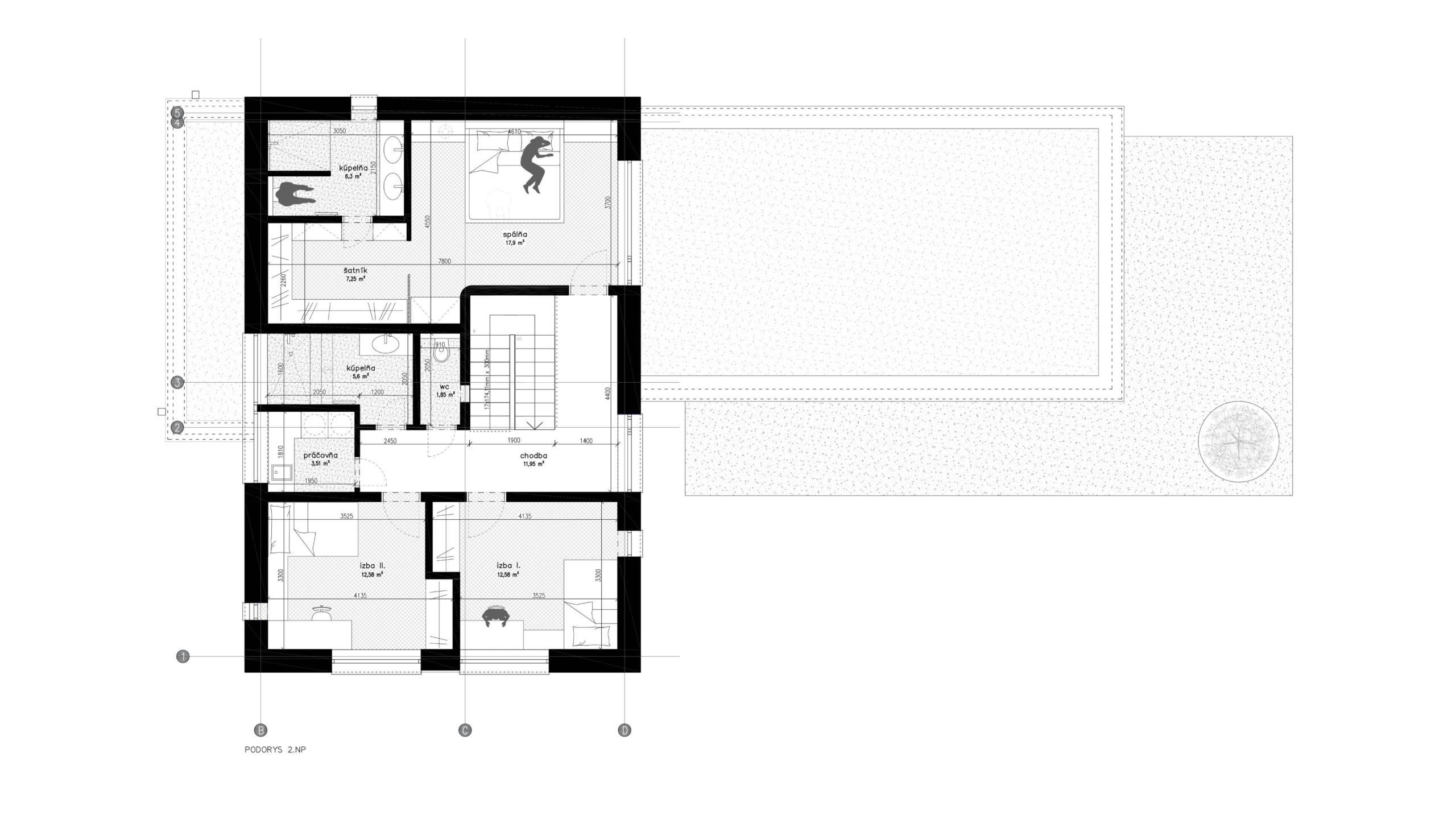
INTERIÉR | ARCHITEKTÚRA
projekt: ARCHITEKTÚRA | Rodinný dom – Čierna voda, Chorvátsky Grob | rok: 2025